LETOU¡¤(ÖйúÇø)ÓÐÏÞ¹«Ë¾¹ÙÍøÐÂÎÅ
GROUP NEWS



LETOU¡¤(ÖйúÇø)ÓÐÏÞ¹«Ë¾¹ÙÍøÊÊÀϲúÆ·Ñз¢ÁìÅÜÐÐÒµ ´òÔìÈý´úͬÌÃÓÅÃÀ¼Ò
¡°2100 Ä꣬£¬£¬£¬£¬Éú³Ý¿ìËÙÀÏÁ仯¡£¡£¡£¡£¡£¡£¡£ÀÏ»¯µÄÉñÃØ½ÒÏþÁË£¬£¬£¬£¬£¬ÈËÃǵÄÊÙÃüÑÓÉìÁË¡£¡£¡£¡£¡£¡£¡£¡± ÃÀ¹ú²©Îïѧ¼Ò°®µÂ»ª?Íþ¶ûÑ·ÔÚ¡¶ÉúÃüµÄδÀ´¡·ÖеÄÔ¤ÑÔ£¬£¬£¬£¬£¬Õý±ÈÉèÏëµÄ¸ü¿ìµ½À´¡£¡£¡£¡£¡£¡£¡£
¹ú¼Òͳ¼Æ¾ÖÊý¾ÝÏÔʾ£¬£¬£¬£¬£¬×èÖ¹2017Ä꣬£¬£¬£¬£¬ÎÒ¹ú60Ëê¼°ÒÔÉÏÍíÄêÉú³Ý¹²2.41ÒÚÈË£¬£¬£¬£¬£¬Õ¼×ÜÉú³ÝµÄ17.3%¡£¡£¡£¡£¡£¡£¡£µ½2020ÄêÎÒ¹ú65ËêÒÔÉϵÄÉú³Ý±ÈÀýÕ¹Íû½«µÖ´ï14.73%£¬£¬£¬£¬£¬ÏìÓ¦µÄÑøÀÏЧÀͱ£´æ×ÅÖØ´óµÄÉú³¤¿Õ¼ä¡£¡£¡£¡£¡£¡£¡£
ÔÚÑøÀÏÐèÇóÒ»Á¬ÔöÌíµÄÅä¾°Ï£¬£¬£¬£¬£¬ÐÐÒµÒ²ÔÚһֱ˼Ë÷ÑøÀϲúÆ·Ö®µÀ¡£¡£¡£¡£¡£¡£¡£
ʲôÑùµÄÉúÑIJÅÊÕùÏÈËÕæÕýÏëÒªµÄÉúÑÄ£¿£¿£¿£¿£¿
ʲôÑùµÄÉè¼Æ²Å»ªÈÃÀÏÈËÇáËÉ×ÔÈô£¬£¬£¬£¬£¬
´ÓÈÝÓ¦¶ÔËêÔ´øÀ´µÄÄ¥í£¿£¿£¿£¿£¿
ʲôÑùµÄÇéÐβŻªÈÃÀÏÈËÆ½°²ÆäÖУ¬£¬£¬£¬£¬¿µ½¡³©ÏíÍíÄꣿ£¿£¿£¿£¿
´ÓÒ»Ñùƽ³£ÉúÑĵ½Í»·¢Ó¦¼±£¬£¬£¬£¬£¬´ÓÉíÌå»úÖÆµ½ÐÄÀí¿¼Á¿£¬£¬£¬£¬£¬LETOU¡¤(ÖйúÇø)ÓÐÏÞ¹«Ë¾¹ÙÍøÔÚÑøÀÏÊÊÀϵÄ·ÉÏÒ»Ö±ÉîÈë̽Ë÷£¬£¬£¬£¬£¬ÂÊÏȸø³öÁËÒ»Ì×¾Ó¼ÒÑøÀÏÈ«·½Î»½â¾ö¼Æ»®¡£¡£¡£¡£¡£¡£¡£
ÊÊÀÏÑз¢Ð§¹û½ÒÄ» ¡¤ Ò»¸öÈý´úͬÌÃÓÅÃÀµÄ¼Ò
ºã¾ÃÖÂÁ¦ÓÚ¡°×¨ÐÄÐÞ½¨ÓÅÃÀÉúÑÄ¡±µÄLETOU¡¤(ÖйúÇø)ÓÐÏÞ¹«Ë¾¹ÙÍø£¬£¬£¬£¬£¬´ËǰÓÚ4ÔÂ20ÈÕÐû²¼ÆäµÚÎå´ú²úÆ·¡°CIFI-5¡±£¬£¬£¬£¬£¬´òÔìÕæÕýÖª×ãС¡¢ÖС¢Àϲî±ðÄêËê¶ÎÐèÇóµÄÓÅÃÀÉçÇø£¬£¬£¬£¬£¬½¨ÉèÈ«ÁäÈ˾Ӿìעϵͳ£¬£¬£¬£¬£¬¶àά¶ÈÖª×ã¿Í»§¶ÔÉúÑĵÄÓÅÃÀÉñÍù¡£¡£¡£¡£¡£¡£¡£
8Ô£¬£¬£¬£¬£¬LETOU¡¤(ÖйúÇø)ÓÐÏÞ¹«Ë¾¹ÙÍøÔÚÈ«Áä¾ì×¢µÄ»ù´¡ÉÏÔÙ½øÒ»²½£¬£¬£¬£¬£¬´ÓÍíÄêÈ˵ÄÐÄÀíÓëÐÄÀíÐèÇóÈëÊÖ£¬£¬£¬£¬£¬Õë¶Ô¾Ó¼ÒÑøÀÏÁìÓòÍÆ³öÊÊÀÏסլ²úÆ·¡£¡£¡£¡£¡£¡£¡£Îª½â¾öÍíÄêÈ˾ӼÒÑøÀϵÄÖÖÖÖÍ´µã£¬£¬£¬£¬£¬LETOU¡¤(ÖйúÇø)ÓÐÏÞ¹«Ë¾¹ÙÍø²úÆ·Ñз¢²¿´î½¨ÁËÔ¼125ƽ·½Ã×µÄÊÊÀÏÑо¿Ó÷¿£¬£¬£¬£¬£¬Í¨¹ýÈý´óά¶È¡¢96¸öÑý¹Öϸ½Ú£¬£¬£¬£¬£¬È«·½Î»ÓÅ»¯Èý´úͬÌÃµÄÆÜÉíÇéÐΡ£¡£¡£¡£¡£¡£¡£±ðµÄ£¬£¬£¬£¬£¬ÊÊÀÏÑо¿Ó÷¿Öл¹ÒýÈë¶à¸ö¹ú¼Ê»¯ÑøÀÏÉè¼ÆÂÄÀú¼°±ê×¼£¬£¬£¬£¬£¬´òÔìÁìÏÈÇÒ³ä·Ö˳Ӧº£ÄÚÊг¡¡¢ÄÜѸËÙÂ䵨ÓÚµØÇø¹«Ë¾µÄ¾Ó¼ÒÐÍÊÊÀÏסլ²úÆ·£¬£¬£¬£¬£¬Á¦ÕùΪÍíÄêÈË´òÔ쿵½¡¡¢Çå¾²¡¢ÇáËɵď߯·ÖÊÆÜÉí¿Õ¼ä¡£¡£¡£¡£¡£¡£¡£
LETOU¡¤(ÖйúÇø)ÓÐÏÞ¹«Ë¾¹ÙÍøÊÊÖÒʵÑéÓ÷¿Êµ¾°Í¼
ÊÊÀÏסլ²»µ«ÒªÇó¶ÔÏÖÓÐסլ¾ÙÐпռä¸ÄÁ¼£¬£¬£¬£¬£¬¶ÔÎÝÄÚµÄÀο¿¼Ò¾ßÓëÉèÖÃÒ²Ìá³öÁ˼«´óµÄÌôÕ½¡£¡£¡£¡£¡£¡£¡£ÏÖÔÚ£¬£¬£¬£¬£¬ÊÐÃæÉϲ¢Ã»ÓÐÌ«¶àרΪÍíÄêÈËÉè¼ÆµÄÀο¿¼Ò¾ßºÍÉèÖ㬣¬£¬£¬£¬Òò´Ë£¬£¬£¬£¬£¬³ýÁ˺âÓîʵÌåÐÞ½¨ÒÔÍ⣬£¬£¬£¬£¬ÎªÁËÈ«·½ÃæÊµÏÖÀÏÈ˵ÄסլÐèÇ󣬣¬£¬£¬£¬LETOU¡¤(ÖйúÇø)ÓÐÏÞ¹«Ë¾¹ÙÍø²úÆ·Ñз¢²¿»¹Óë¼Ò¾ß¡¢×°±¸ÉèÊ©µÄÉú²ú³§¼ÒÁªÊÖ£¬£¬£¬£¬£¬ÅäºÏÉè¼Æ¡¢¿ª·¢³öΨһÎÞ¶þµÄÁ¢Òì²úÆ·¡£¡£¡£¡£¡£¡£¡£
ÉîÌõÀíÍ´µãÆÊÎö ¡¤ ÖÜÈ«¹Ø×¢ÀÏÈËÉíÐÄ¿µ½¡
LETOU¡¤(ÖйúÇø)ÓÐÏÞ¹«Ë¾¹ÙÍøÔÚʼÖÕ×·Çó¡°ÒÔ¿Í»§ÎªÖÐÐÄ¡±µÄͬʱ£¬£¬£¬£¬£¬Í¨¹ý°ÙÓà´ÎµÄÈë»§·Ã̸£¬£¬£¬£¬£¬ÉÏǧÕŵÄÎʾíÊӲ죬£¬£¬£¬£¬Õë¶Ô²î±ðµÄ¼Òͥ״̬¡¢ÀÏÈ˵ÄÉíÌå״̬ºÍ¾¼ÃÄÜÁ¦£¬£¬£¬£¬£¬´ÓÉúÑÄ×÷Ï¢¡¢¾Ó¼ÒÐèÇóµÈ·½ÃæÈëÊÖ£¬£¬£¬£¬£¬¾ÙÐÐÖÜÈ«¶øÉîÈëµÄÑо¿£¬£¬£¬£¬£¬²¢Æ¾Ö¤×ۺϵÄÊý¾Ý·´Ï죬£¬£¬£¬£¬×îÖÕ×ܽá³öÊÊÀÏסլÐè½â¾öµÄÆß´óÍ´µã¡£¡£¡£¡£¡£¡£¡£
ÐÄÀí·½ÃæËÄ´óÍ´µã
¢Ù ÊÓÁ¦¼õÍË¡¢Ñ£¹âÃô¸Ð£ºÍíÄêÈËÊӽDZäС£¬£¬£¬£¬£¬ÊÓÁ¦Ë¥ÍË£¬£¬£¬£¬£¬±ÈÕÕÃô¸Ð¶ÈÓÐËùϽµ£¬£¬£¬£¬£¬¶ÔÑ£¹âÊ®·ÖÃô¸Ð£»£»£»£»£»£»£»£»
¢Ú ¹Ç÷À±äÐΡ¢¼¡È⽩»¯£ºÍíÄêÈËÉí¸ßËõ¼õ¡¢¹ÇÖÊËÉÉ¢£¬£¬£¬£¬£¬Ðж¯·ù¶È±äС¡¢ÉìÊÖ¹»¸ßÄÑÌ⣬£¬£¬£¬£¬Ñü¼¡ÀÍËð»û±ä£¬£¬£¬£¬£¬²»¿É¾ÃÕ¾ÍäÑü£¬£¬£¬£¬£¬Ï¶׺óÕ¾Á¢¸üÄÑÌ⣻£»£»£»£»£»£»£»
¢Û ·´Ó¦»ºÂý¡¢¶àÓÃÂÖÒΣºÍíÄêÈËÓ¦¶Ô¸ß²î·´Ó¦²»ÊµÊ±£¬£¬£¬£¬£¬Ö«ÌåÎÞаÐÔ±ä²î¡¢Ðж¯Î´±ã£¬£¬£¬£¬£¬Ê¹ÓÃÂÖÒÎÆµÂʸߣ»£»£»£»£»£»£»£»
¢Ü Ò×·¢ÒâÍâ¡¢ÐèÒª¾ÈÔ®£ºÓÉÓÚÍíÄêÈËÒâÍⱬ·¢ÆµÂʸߣ¬£¬£¬£¬£¬ÇÒ×Ô¾ÈÄÜÁ¦½ÏÈõ£¬£¬£¬£¬£¬¶Ô½ôÇÀ¾ÈÔ®ÐèÇó¸ß¡£¡£¡£¡£¡£¡£¡£
ÐÄÀí·½ÃæÈý´óËßÇó
¢Ù ÅÎÔ¸±»×ðÖØ£¬£¬£¬£¬£¬ÓÐ×ðÑϵØÉúÑÄ£ºÍíÄêÈË×ÝÈ»ÃæÁÙÄêËêÔöÌí¡¢ÍȽÅδ±ã£¬£¬£¬£¬£¬Ò²Ï£ÍûÄܹ»ÎÞÕϰµØÔÚ¼ÒÖÐÔ˶¯£¬£¬£¬£¬£¬×ÔÓɵØ×öÁ¦ËùÄܼ°µÄÊÂÇ飻£»£»£»£»£»£»£»
¢Ú ×·ÇóÇå¾²¸Ð£¬£¬£¬£¬£¬Ï²»¶Èý´úͬÌþÓס£¡£¡£¡£¡£¡£¡£ºÏ£Íû¿ÉÒÔͬ¼ÒÈËÆÜÉí£¬£¬£¬£¬£¬ÓйéÊô¸Ð£¬£¬£¬£¬£¬ÇÒÏ£ÍûÇéÐÎÓгä·ÖµÄÇå¾²°ü¹Ü£»£»£»£»£»£»£»£»
¢Û ×·Çó¼òÆÓÎ޼縺£¬£¬£¬£¬£¬ÇãÔþÊýÂë²Ù×÷£º¹ØÓÚÏȽøµÄÊýÂë¡¢ÖÇÄÜ»¯²Ù×÷½ÏÇãÔþ£¬£¬£¬£¬£¬¹ýÓÚÖØ´óµÄ²Ù×÷°ì·¨»áÁîÀÏÈ˸ÐÓ¦¼ç¸º¡£¡£¡£¡£¡£¡£¡£
Èý´óά¶ÈÈëÊÖ ¡¤ ¾Ó¼ÒÑøÀÏÈ«·½Î»½â¾ö¼Æ»®
Î§ÈÆÍíÄêÈËÆÜÉíµÄÐèÇ󣬣¬£¬£¬£¬ÔÚÊÊÀÏÑо¿Ó÷¿µÄϸ½ÚÉèÖÃÖУ¬£¬£¬£¬£¬LETOU¡¤(ÖйúÇø)ÓÐÏÞ¹«Ë¾¹ÙÍø×ÃÇé¼ÓÈëÁËÐí¶àϸÄ廯µÄÉè¼Æ£¬£¬£¬£¬£¬ÒÔ²úÆ·µÄÇå¾²ÐÔ¡¢±ã½ÝÐÔ¡¢¿µ½¡ÐÔΪÈý´óÆðµã£¬£¬£¬£¬£¬ÔÚÒµÄÚÊÊÀϲúÆ·µÄÑо¿ÖÐ̽Ѱ³öи߶ȡ£¡£¡£¡£¡£¡£¡£
Çå¾²µÚÒ»£¬£¬£¬£¬£¬ÈÃ×ÓÅ®¶¨ÐÄ
34ÏîÇå¾²Éè¼Æ£¬£¬£¬£¬£¬Í»·¢ÊÂÎñÈ«¿¼Á¿
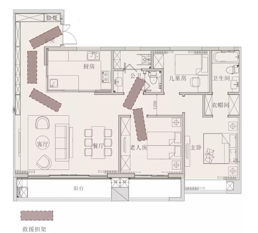
ºâÓîÖйØÓÚÇå¾²ÐԵĿ¼Á¿£¬£¬£¬£¬£¬¿ÉνÏ꾡Èë΢£¬£¬£¬£¬£¬Õë¶ÔÍíÄêÈËÒâÍⱬ·¢ÆµÂʽϸߵÄÕ÷Ï󣬣¬£¬£¬£¬ºâÓîÖ÷ҪͨµÀÉè¼Æ¾ùÇкϵ£¼ÜËùÐè±ê×¼£¬£¬£¬£¬£¬Ò½ÎñÖ°Ô±ÄÜÀû±ãµØ½øÈë¿ÍÌü¡¢³ø·¿¡¢ÎÔÊÒ¼°ÎÀÉú¼ä¾ÙÐоÈÔ®£¬£¬£¬£¬£¬×èÖ¹°áÔË¡£¡£¡£¡£¡£¡£¡£

˼Á¿µ½ÂÖÒÎʹÓÃÆµÂʸߣ¬£¬£¬£¬£¬ÒÔÊÇ´ÓÈë»§ÃÅ¡¢·¿Ãųߴ硢ÎÝÄÚÖ÷ÒªµÄÔ˶¯¿Õ¼ä¡¢¹ñ×Ó¿ªºÏ¡¢²Ù×÷¿Õ¼äµÈ¶à¸öά¶È°ü¹ÜÂÖÒεĻØ×ª°ë¾¶ÓëÔ˶¯¿Õ¼ä£¬£¬£¬£¬£¬Ö÷ÒªµÄÔ˶¯¿Õ¼ä°ü¹ÜÂÖÒÎ90¡ã»ò360¡ãÐýת°ë¾¶¡£¡£¡£¡£¡£¡£¡£

ÀÏÈËÈôÊÇÔÚ¼ÒÖÐÒ»µ©Óöµ½Í»·¢ÇéÐÎÇëÇóºô¾È£¬£¬£¬£¬£¬ÑÓÉìÖÁµØÃæµÄÉþË÷ÁîÀÏÈË×ÝÈ»µ¹ÔÚµØÉ϶¼ÄÜÀµ½£¬£¬£¬£¬£¬¾¯±¨ÀÏìºó£¬£¬£¬£¬£¬¼ÒÈËÊÖʱ»ú˲¼äÊÕµ½±¨¾¯ÌáÐÑ£¬£¬£¬£¬£¬¼ÒÈË¿Éͨ¹ýÊÖ»úÒ»´ÎÐÔÊÚȨ¸øÎïÒµÈë»§ÃÜÂ룬£¬£¬£¬£¬×ÝÈ»×ÓÅ®²»ÔÚ¼Ò£¬£¬£¬£¬£¬Ò²¿É֪ͨÎïÒµÊÂÇéÖ°Ô±µÚһʱ¼ä½øÃÅÇÀ¾ÈÀÏÈË£¬£¬£¬£¬£¬ÇÒʹʱ¬·¢ËùÔڵصķ¿¼äÃſڻá×Ô¶¯¾ÙÐеƹâÉÁׯ£¬£¬£¬£¬£¬Í¨Öª¾ÈÔ®Ö°Ô±¡£¡£¡£¡£¡£¡£¡£
Í»·¢×´Ì¬ÀÏ쾯±¨£¬£¬£¬£¬£¬µÆ¹âÉÁ×ÆÍ¨Öª¾ÈÔ®Ö°Ô±

ÀÏÈËÀÏ쾯±¨ºó£¬£¬£¬£¬£¬¼ÒÈËÊÖ»úÁ¬Ã¦ÊÕµ½±¨¾¯ÌáÐÑ
ÇáËÉÌåÑ飬£¬£¬£¬£¬ÈÃÀÏÈËÊæÐÄ
48¸ö±ã½Ýϸ½Ú£¬£¬£¬£¬£¬µãµÎ¹Ø°®ÀÏÈËÉíÐÄ
ÔÚÓû§ÌåÑé·½Ãæ£¬£¬£¬£¬£¬LETOU¡¤(ÖйúÇø)ÓÐÏÞ¹«Ë¾¹ÙÍø¡°Á¿ÎÄÌåÒ¡±µÄÔöÉèÁËÐí¶àÈËÐÔ»¯Ï¸½Ú¡£¡£¡£¡£¡£¡£¡£Í¨¹ý¶ÔÈë»§ÃÅ¡¢³ø·¿¡¢ÎÀÉú¼ä¡¢Ñǫ̂µÈ¿Õ¼ä¾ÙÐÐÄÚÍâÎ޸߲îÉè¼Æ£¬£¬£¬£¬£¬À´Ó¦¶ÔÍíÄêÈ˶Ը߲ӦµÄ²»ÊµÊ±£¬£¬£¬£¬£¬Àû±ãÂÖÒÎÀÏÈË×ÔÓÉÊÕÖ§£¬£¬£¬£¬£¬ïÔÌÀÏÈËˤõÓΣº¦¡£¡£¡£¡£¡£¡£¡£

˼Á¿µ½ÀÏÈËÉí¸ßËõ¼õ¡¢³Ë×øÂÖÒΡ¢»ò¼¡È⽩ӲÉìÊÖÄÑÌâµÈÇéÐΣ¬£¬£¬£¬£¬È«ÎÝËùÓÐÌ¨Ãæ¡¢µÆ¹â¿ª¹Ø¡¢ÃŰÑÊֵȾù½ÏͨË׺âÓîÓÐÊʵ±½µµÍ¡£¡£¡£¡£¡£¡£¡£
ÓÉÓÚÀÏÈËÑü¼¡ÀÍËð»û±ä£¬£¬£¬£¬£¬²»¿É¾ÃÕ¾ÍäÑü£¬£¬£¬£¬£¬ºâÓîͨ¹ýÉè¼ÆÔöÇ¿¿Õ¼äµÄÁ鶯ÐԺ͹¦Ð§µÄÊÊÓÃÐÔ£¬£¬£¬£¬£¬Ê¹ÀÏÈËÄܹ»×ø×ÅÇáËÉÓ¦¶ÔÉúÑÄ¡£¡£¡£¡£¡£¡£¡£ÀýÈç³ø·¿ºÍÎÀÉú¼ä²Ù×÷̨µÄϹñ×ÅʵΪ¿ÉÀ³öµÄ×ùÒΣ¬£¬£¬£¬£¬ÔÚ±£´æÊÕÄÉ×÷ÓõÄͬʱ£¬£¬£¬£¬£¬ÊµÏÖÀÏÈË¡°×ø×ųø·¿ÊÂÇ顱¡¢¡°×ø×ÅÏ´Êþ¡±£»£»£»£»£»£»£»£»±ðµÄ£¬£¬£¬£¬£¬¡°×ø×Å»»Ð¬¡±¡¢¡°×ø×ÅÁÜÔ¡¡±µÈÉè¼Æ¿É×îºéÁ÷ƽïÔÌÀÏÈËÑü²¿¼ç¸º£¬£¬£¬£¬£¬Á¬ÂíͰ³åË®µÄ°´Å¥Î»Öö¼ÊÇΪÁËïÔÌÀÏÈËÍäÑü´ÎÊý¶øÉèÖᣡ£¡£¡£¡£¡£¡£¶øÔÚÐþ¹Ø»»Ð¬´¦¡¢ÎÀÉú¼äÉèÓмæ¾ß¹¦Ð§ÐԵķöÊÖ£¬£¬£¬£¬£¬Àû±ãÀÏÈËÕÆÎÕÆ½ºâ£¬£¬£¬£¬£¬ÆðÉíÕ¾Á¢¡£¡£¡£¡£¡£¡£¡£
·¿ªÔî¾ß£¬£¬£¬£¬£¬ÓÍÑÌʱ»ú×Ô¶¯·¿ª£»£»£»£»£»£»£»£»Ï´ÒÂÍê³É£¬£¬£¬£¬£¬ÁÀÒ¼ܻá×Ô¶¯½µÏ¡£¡£¡£¡£¡£¡£¡£¼ò»¯µÄ³ø·¿ÓëÏ´Òµİ취£¬£¬£¬£¬£¬´øÀ´¸üÇáËɱã½ÝµÄÌåÑé¡£¡£¡£¡£¡£¡£¡£¡°µÆËæÈ˶¯¡±£¬£¬£¬£¬£¬ÃâÈ¥¿ª¹Ø°ÃÄÕ¡£¡£¡£¡£¡£¡£¡£±ðµÄ£¬£¬£¬£¬£¬·¿¼äÄڵĿյ÷¡¢µçÊÓ¡¢µÆ¾ß¡¢´°Á±µÈ¶¼¿Éͨ¹ýÓïÒô¿ØÖÆÀ´²Ù×÷£¬£¬£¬£¬£¬×îºéÁ÷ƽµÄ¼õÇáÀÏÈ˲»ÉÆÓÚµÄÊý×Ö»¯¡¢ÖÇÄÜ»¯µÄ²Ù×÷¡£¡£¡£¡£¡£¡£¡£
¿µ½¡¿ìÀÖ£¬£¬£¬£¬£¬ÈÃÈ«¼Ò¿ªÐÄ
13Ï½¡ÐÔÉè¼Æ£¬£¬£¬£¬£¬¹Ø°®ÀÏÈ˸ü¹Ø°®È«¼Ò
ÍíÄêÈ˵Ŀµ½¡¼´ÊÇÈ«¼ÒµÄÐÒ¸££¬£¬£¬£¬£¬ÒÔÊÇLETOU¡¤(ÖйúÇø)ÓÐÏÞ¹«Ë¾¹ÙÍøÖÜÈ«µÄ´Ó¹âÏß¡¢¿ÕÆø¡¢Î¶ȡ¢Êª¶ÈµÈ·½ÃæÈëÊÖ£¬£¬£¬£¬£¬ÊµÏÖ×Ô¶¯¿ØÖÆ¿ÕÆøÖÊÁ¿¡¢·¿¼äÎÂʪ¶ÈµÈ£¬£¬£¬£¬£¬°ü¹ÜÊÒÄÚ¿ÕÆøÇéÐÎÆ·ÖÊ£¬£¬£¬£¬£¬ÇÒ¾ù¿ÉÓ°ÏóÀÏÈ˵Äϲ»¶ºÍϰ¹ß×Ô¶¯¾ÙÐе÷Àí£»£»£»£»£»£»£»£»Í¨¹ý˯Ãß¼à²â´ø¼à²âÀÏÈË˯ÃßÖÊÁ¿£¬£¬£¬£¬£¬²¢¿ÉÏÔʾÓÚÏ´ÊÖ¼äÖÇÄÜħ¾µ£¬£¬£¬£¬£¬Àû±ã¼ÒÈËÏ꾡ÖÜÃܵÄÕÕ¹ËÍíÄêÈË¿µ½¡¡£¡£¡£¡£¡£¡£¡£

ÊÊÖÒʵÑéÓ÷¿»¹ÌØÊâÔ¼ÇëÇ廪´óѧÐÞ½¨Ñ§Ôº¸±½ÌÊÚ¡¢ÖйúÕÕÃ÷ѧ»áÊÒÄÚרҵÕÕÃ÷ίԱ»áÃØÊ鳤ÕÅê¿ÏÈÉú£¬£¬£¬£¬£¬ÎªLETOU¡¤(ÖйúÇø)ÓÐÏÞ¹«Ë¾¹ÙÍøÊÊÀϲúƷרÞÙÐÐÁËÕÕÃ÷Éè¼Æ£¬£¬£¬£¬£¬²»µ«ÔÚÕÕ¶ÈÉÏ˼Á¿ÍíÄêÈËºÍÆäËû¼ÒÍ¥³ÉÔ±µÄ²î±ðÐèÇ󣬣¬£¬£¬£¬Í¬Ê±Í¨Ï꾡Ä廯µÄÉè¼Æ×èֹѣ¹â£¬£¬£¬£¬£¬²¢Æ¾Ö¤ÈËÌåÐÔÄܺÍÃÀ¹úWELL±ê×¼¾ÙÐÐÁ˽ÚÂÉÕÕÃ÷µÄʵÑé¡£¡£¡£¡£¡£¡£¡£Õë¶ÔÀÏÈËºÍÆäËû¼ÒÍ¥³ÉÔ±²î±ðµÄÊÓ¾õÌØµã£¬£¬£¬£¬£¬×¨ÃÅÉè¼ÆÁ˲î±ðµÄÆðÒ¹ÕÕÃ÷ģʽ£¬£¬£¬£¬£¬ºÇ»¤È«¼Ò¿µ½¡¡£¡£¡£¡£¡£¡£¡£

ÔÚLETOU¡¤(ÖйúÇø)ÓÐÏÞ¹«Ë¾¹ÙÍøÊÊÀϲúÆ·µÄÑз¢Àú³ÌÖУ¬£¬£¬£¬£¬Ò²»ñµÃÁËÊÊÀÏסլÁìÓòµÄר¼Ò¡¢Ç廪´óѧÖÜÑàçë½ÌÊÚµÄÖ¸µ¼¡£¡£¡£¡£¡£¡£¡£ÖܽÌÊÚÒÔΪLETOU¡¤(ÖйúÇø)ÓÐÏÞ¹«Ë¾¹ÙÍøÔÚ¾Ó¼ÒÑøÀÏ·½ÃæËù×öµÄ̽Ë÷ºÜÊÇÖµµÃÒ»¶¨£¬£¬£¬£¬£¬¡°LETOU¡¤(ÖйúÇø)ÓÐÏÞ¹«Ë¾¹ÙÍø¹ØÓÚÍíÄêÈËÈËÌ幤ѧµÄÑо¿ºÜÊÇÉîÈ룬£¬£¬£¬£¬ÎÊÌâµÄѰÕÒºÜÊÇÖÜÈ«£¬£¬£¬£¬£¬´ÓÇå¾²½Ç¶Èµ½ÉúÑÄ·½ÃæµÄÿһ¸öϸ½Ú¶¼ÏÂ×ãÁËʱ¹â£¬£¬£¬£¬£¬³ä·Öչʾ³ö½â¾ö¾Ó¼ÒÑøÀÏÎÊÌâµÄ¿ÌÒâºÍÆð¾¢¡£¡£¡£¡£¡£¡£¡£¡±

ÏÖÔÚ£¬£¬£¬£¬£¬LETOU¡¤(ÖйúÇø)ÓÐÏÞ¹«Ë¾¹ÙÍøÊÊÀÏסլ²úÆ·ÒѾÍê³ÉÁ˵ÚÒ»½×¶ÎµÄÑз¢£¬£¬£¬£¬£¬Î´À´½«ÔÚ¸£½¨¡¢Î人¡¢ÇൺµÈµØµÄÏîÄ¿Â½ÐøÂ䵨¡£¡£¡£¡£¡£¡£¡£¶øÊÊÀÏ·½ÃæµÄ²úÆ·Ñо¿£¬£¬£¬£¬£¬LETOU¡¤(ÖйúÇø)ÓÐÏÞ¹«Ë¾¹ÙÍøÈÔ½«Ò»Á¬Ò»Ö±µÄµü´úÉý¼¶£¬£¬£¬£¬£¬Á¦ÕùΪÖйúÀÏÈË´òÔìÒ»¸öÓÐζȡ¢Óоì×¢£¬£¬£¬£¬£¬¸ü¾ßÈËÐÔ»¯µÄ¾Ó¼ÒÇéÐΡ£¡£¡£¡£¡£¡£¡£¶àÄêÀ´£¬£¬£¬£¬£¬LETOU¡¤(ÖйúÇø)ÓÐÏÞ¹«Ë¾¹ÙÍøÊ¼ÖճмÌÒÔÈËΪ±¾µÄÀíÄ£¬£¬£¬£¬ÔÚ²úÆ·Á¦´òÔìÉÏ×ÖÕå¾ä×㬣¬£¬£¬£¬Óý³ÐĵÄÉè¼Æ¡¢Ï¸½ÚµÄ¿¼Á¿£¬£¬£¬£¬£¬ÓªÔìÓÅÃÀµÄÈ˾ÓÇéÐΣ¬£¬£¬£¬£¬ÕýÈçLETOU¡¤(ÖйúÇø)ÓÐÏÞ¹«Ë¾¹ÙÍø¶Ê³¤ÁÖÖÐÖ¸³ö£¬£¬£¬£¬£¬¡°ºÃµÄÎÝ×ÓÒ»¶¨ÊÇÒÔ¡®ÈË¡¯ÎªÆðµãµÄ£¬£¬£¬£¬£¬LETOU¡¤(ÖйúÇø)ÓÐÏÞ¹«Ë¾¹ÙÍøÖÂÁ¦ÓÚ´ÓÈËÎľì×¢µÄ½Ç¶È˼Ë÷δÀ´È˾ÓÉúÑÄ¡±¡£¡£¡£¡£¡£¡£¡£
×îÐÂÐÂÎÅ
-
LETOU¡¤(ÖйúÇø)ÓÐÏÞ¹«Ë¾¹ÙÍøÐÂÎÅ
ÒÔÐÅÑöÖ®¹âÕÕÁÁ·Ü½øÖ®Â·ØLETOU¡¤(ÖйúÇø)ÓÐÏÞ¹«Ë¾¹ÙÍø¾ÙÐÐÇì×£½¨µ³103ÖÜÄêôßÖ÷Ìâ½ÌÓýרÌâÔ˶¯
-
LETOU¡¤(ÖйúÇø)ÓÐÏÞ¹«Ë¾¹ÙÍøÐÂÎÅ
1-6ÔÂLETOU¡¤(ÖйúÇø)ÓÐÏÞ¹«Ë¾¹ÙÍø½»¸¶½ü3ÍòÌ×оӣ¬£¬£¬£¬£¬Ê¢ÆôÏĵÄѤÀÃÆªÕÂ
-
LETOU¡¤(ÖйúÇø)ÓÐÏÞ¹«Ë¾¹ÙÍøÐÂÎÅ
ס½¨²¿ºÍÎÞÎýÊи÷¼¶Ïòµ¼Ò»ÐÐÔÙµ÷ÑÐLETOU¡¤(ÖйúÇø)ÓÐÏÞ¹«Ë¾¹ÙÍøº£ÃàÉçÇø¡ª¡ª²¬ÔÃϪÉÏ
-
LETOU¡¤(ÖйúÇø)ÓÐÏÞ¹«Ë¾¹ÙÍøÐÂÎÅ
ÎÚ³ľÆëLETOU¡¤(ÖйúÇø)ÓÐÏÞ¹«Ë¾¹ÙÍø¹ã³¡»ñÆÀ×ÔÖÎÇøÇå¾²Éú²úÔ¡°Õþ¸®¹ÛĦ¹¤µØ¡±£¡
-
ɨÂë¹Ø×¢¹Ù·½Î¢ÐÅ
ʵʱ»ñÈ¡¸ü¶à¼¯ÍÅÐÅÏ¢
-
LETOU¡¤(ÖйúÇø)ÓÐÏÞ¹«Ë¾¹ÙÍø







